
Vítejte v Hnátnici. Hledáte rodinný dům s pozemkem tak akorát, klidnou atmosférou a možností úprav podle vlastních představ? Tak tato nabídka, pro Vás může být tou pravou.
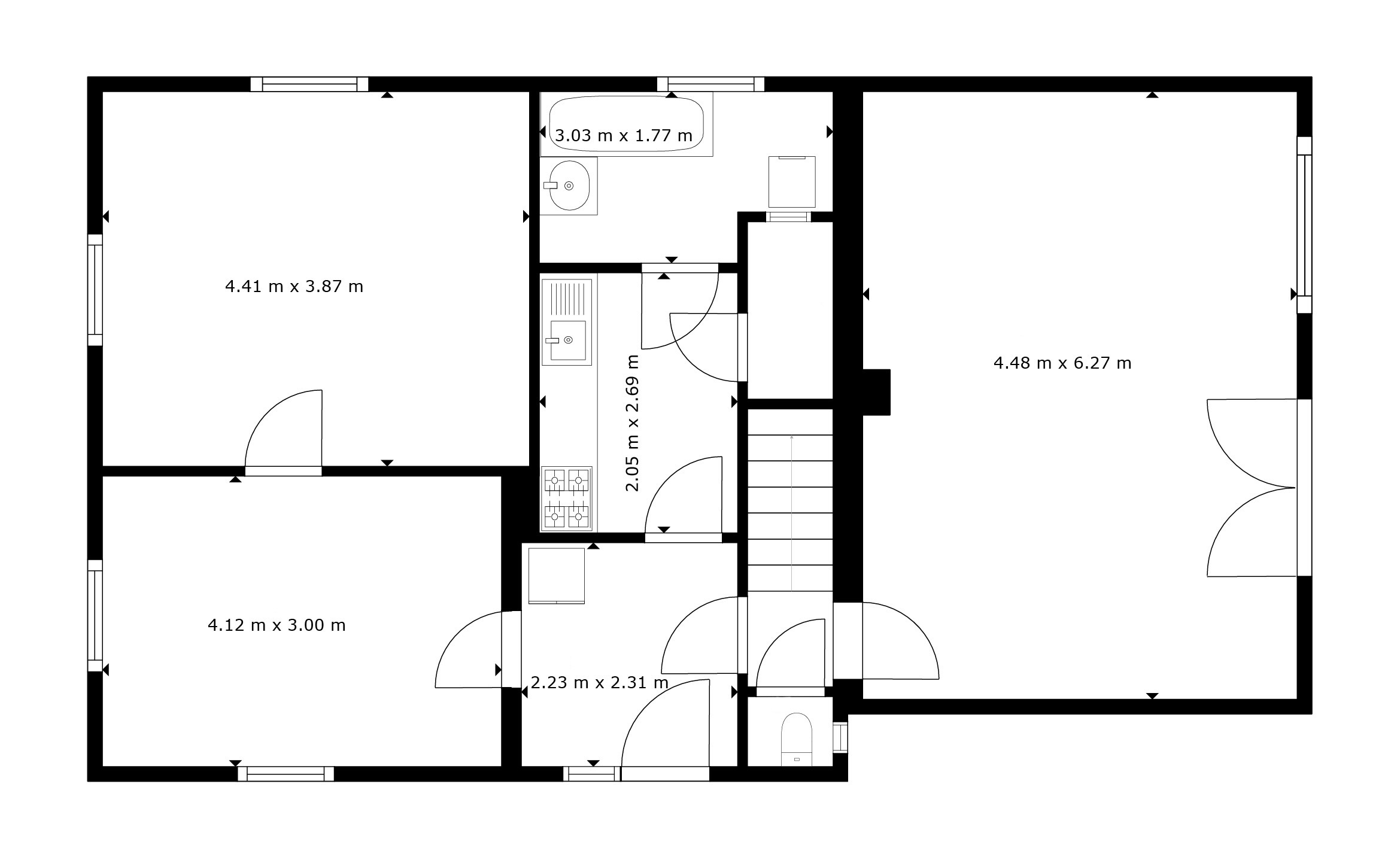
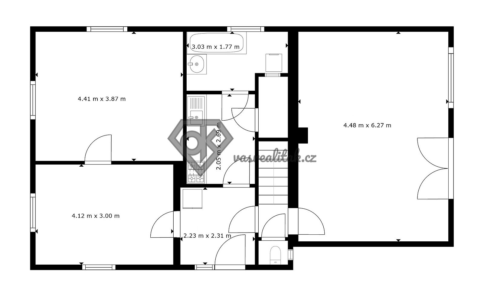
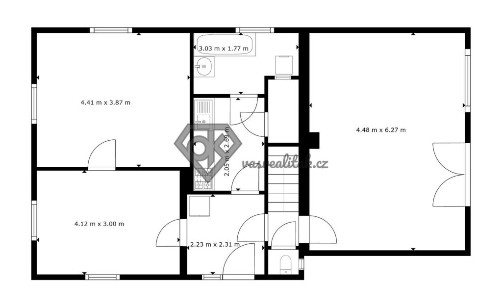
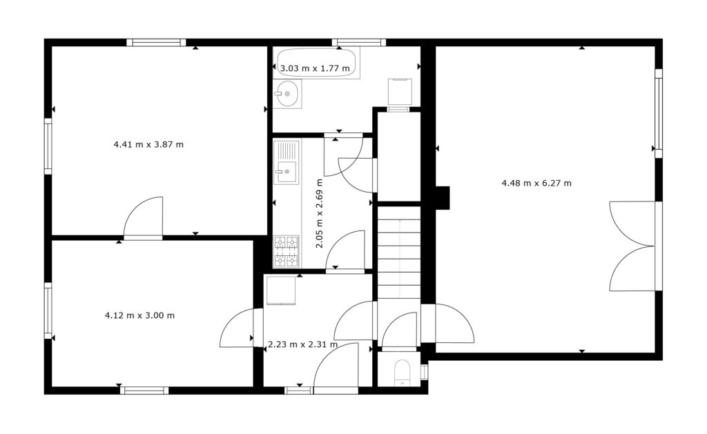
Jaká je dispozice domu?
– předsíň
– pokoj s kachlovými kamny
– další pokoj
– kuchyň
– spíž
– koupelna
– toaleta
– dílna, garáž
– podkroví, s potenciálem pro další obytné místnosti
Pár technických údajů?
– užitná plocha domu: 82 m²
– celková plocha pozemku: 984 m²
– prostorná zahrada
– plastová okna
– nová střecha
– vytápění pomocí kachlových kamen a přímotopů
– ohřev vody průtokovým ohřívačem
– na pozemku je také studna s užitkovou vodou
– sítě: elektřina, voda, kanalizace, plyn je přiveden na hranici pozemku (HUP)
Pro koho je dům ideální?
– pro rodinu hledající klidné bydlení s větším pozemkem
– pro ty, kteří hledají dům, který si mohu zařídit přesně podle svých přání a potřeb
– pro milovníky klidu a přírody
O jakou se jedná lokalitu?
Dům se nachází v klidné obci Hnátnice, která leží nedaleko města Ústí nad Orlicí, takže veškerou občanskou vybavenost máte v krátké dojezdové vzdálenosti. Nabízí příjemné venkovské bydlení s dostatkem soukromí a klidu. V okolí se nachází krásná příroda a množství možností pro procházky, cykloturistiku nebo výlety. Lokalita je ideální pro ty, kteří hledají klidné bydlení mimo ruch města, ale zároveň chtějí mít město na dosah. Dobrá dostupnost do okolních měst a zároveň příjemné prostředí pro rodinný život
Poznámka:
– uvedené výměry jsou pouze orientační
– v případě více zájemců bude nemovitost prodána nejlepší nabídce a majitel si vyhrazuje právo vybrat kupujícího na základě jim zvolených kritérií
– veškeré zveřejněné údaje obsažené v tomto inzerátu mají pouze informativní charakter a nejsou nabídkou ve smyslu § 1731 nebo § 1732 občanského zákoníku, ani se nejedná o veřejný příslib dle § 1733 občanského zákoníku