
Vítejte v Městečku Trnávka. Hledáte domov, do kterého se můžete ihned nastěhovat bez nutnosti dalších investic?
Tento krásný, moderně zrekonstruovaný byt 3+kk vás nadchne svým stavem, prostorem i atmosférou.
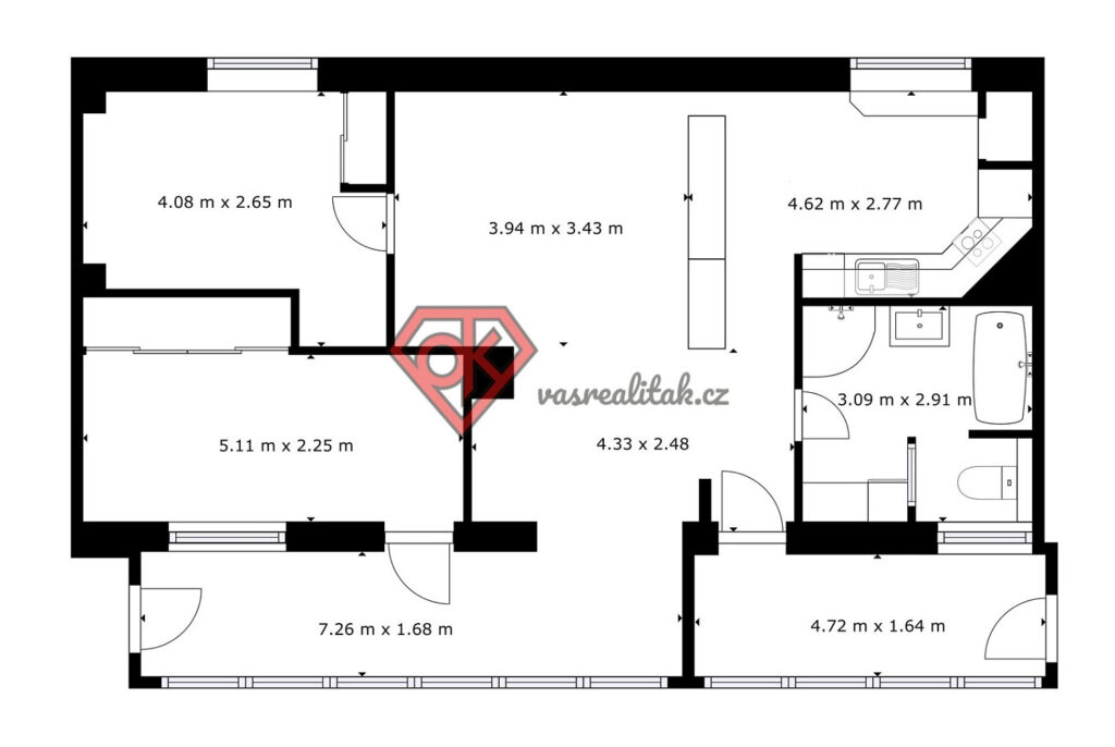
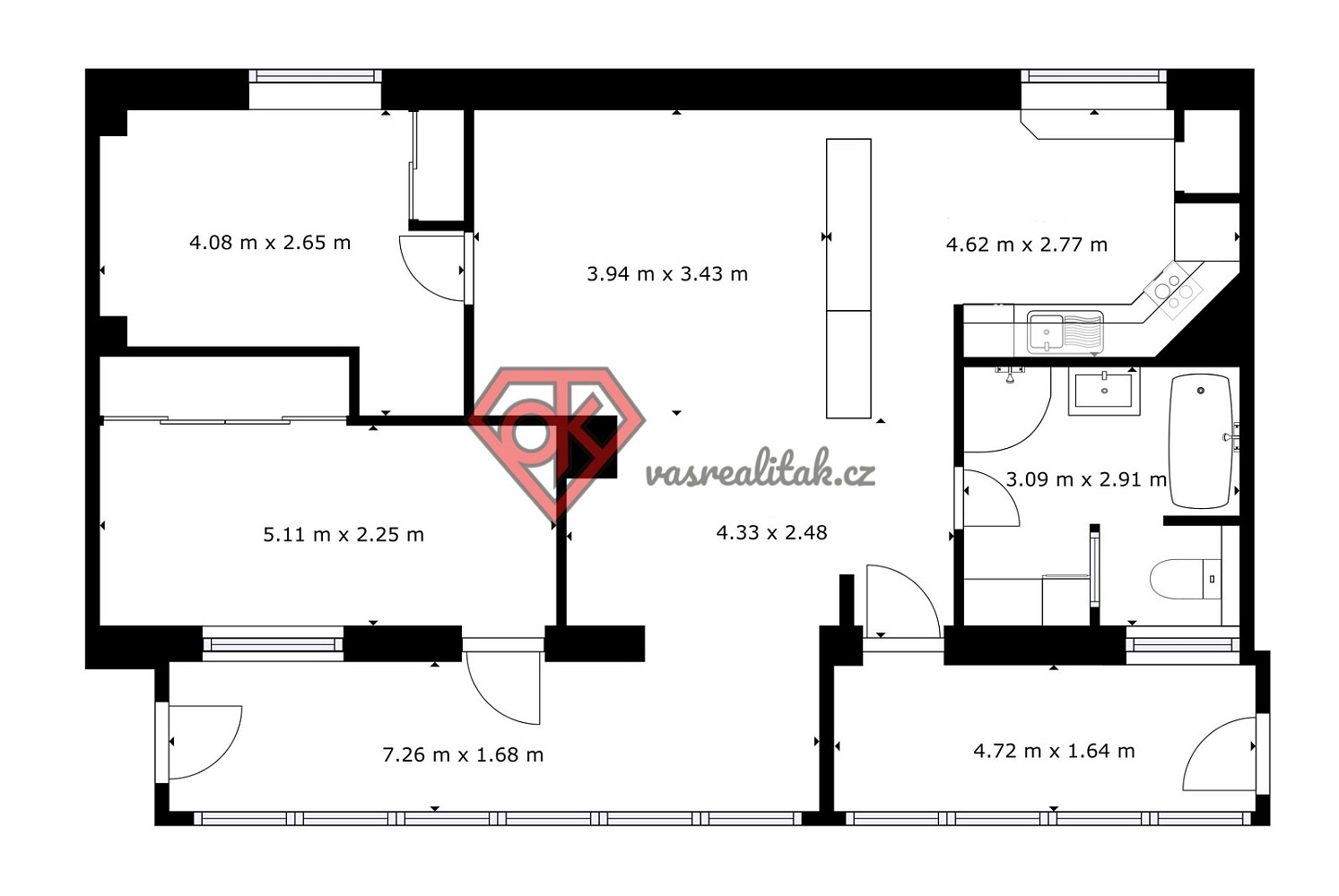
Jaká je dispozice bytu?
– moderní obývací pokoj s kuchyňským koutem vybaveným spotřebiči a spíží
– ložnice s vestavěnou skříní
– pokoj s instalovanou infrasaunou
– krásná prostorná koupelna s toaletou
– zádveří
– prosklená veranda
– v přízemí pod bytem vlastní kotelna s dílnou (zde je umístěn nový plynový kotel a bojler)
– k tomu navíc společné prostory na půdě, kde je také jeden pokojíček
– v přízemí sklípek a sklad (ten je v současné době pronajat) – s místem tady problém mít rozhodně nebudete.
Pár technických údajů?
– celková užitná plocha činí 99 m²
– osobní vlastnictví
– krásný stav po kompletní rekonstrukci (v roce 2006, koupelna 2015)
– není třeba žádných úprav
– plynový kotel s dálkově ovládaným termostatem – zajišťuje vytápění i ohřev vody – měněn 12/2024
– ohřev vody je zajištěn také bojlerem
– komín – možnost instalace krbových kamen
Pro koho je byt určen?
– pro rodinu nebo pár, kteří hledají domov bez další nutné práce či investic
– pro ty, kdo chtějí bydlet bez starostí a v krásném prostředí
O jakou se jedná lokalitu?
– Městečko Trnávka je příjemná obec s dobrou občanskou vybaveností
– školka, škola, obchod i sportovní vyžití v dosahu
– v okolí krásná příroda, ideální pro procházky, cyklistiku i relax
– dostupnost do větších měst jako Moravská Třebová nebo Svitavy
Zní to jako váš vysněný domov? Zavolejte mi a rád vás nemovitostí osobně provedu. Těším se na Vás.
Poznámka:
– uvedené výměry jsou pouze orientační
– v případě více zájemců bude nemovitost prodána nejlepší nabídce a majitel si vyhrazuje právo vybrat kupujícího na základě jim zvolených kritérií
– veškeré zveřejněné údaje obsažené v tomto inzerátu mají pouze informativní charakter a nejsou nabídkou ve smyslu § 1731 nebo § 1732 občanského zákoníku, ani se nejedná o veřejný příslib dle § 1733 občanského zákoníku